Prensip k ap travay nan Z tip Hopper CONVEYOR

Z-asansè ki gen fòm, ke yo rele tou Z-asansè kalite, se yon kalite ekipman leve ak transmèt ki kondwi Hopper a transpòte ak leve materyèl atravè yon chèn. fè yon diferans.
Pou mete li tou senpleman, de chenn yo kontinuèl yo kouvri ak Hoppers, motè a kondui chenn yo Thorne, ak Hoppers yo Thorne ak chenn yo leve ak transpòte materyèl yo nan pozisyon deziyen an pou dechaje. Paske li ka transpòte orizontal, Lè sa a, vètikal, ak Lè sa a, orizontal, menm jan ak lèt la Z, yo rele li z-tip bokit asansè, z-kalite bokit feeder, ak z-asansè ki gen fòm nan endistri a. Demann, ki fèt nan fòm C-, fòm T- ak lòt modèl.
Karakteristik yo nan asansè a z-kalite yo sitou konsantre nan pousantaj la kraze ki ba nan materyèl la leve, kò a fèmen ak pwoteksyon anviwònman an, pwodiksyon an gwo, konbinezon an fleksib, ak egzeyat milti-pwen an nan yon sèl ranje. Ekipman yo te itilize nan divès endistri, tankou materyèl refractory, pwodui chimik pharmaceutique, pwoteksyon anviwònman jeni minisipal, pyès ki nan konpitè manje, elatriye.
Ki diferans ki genyen antZ tip hopper transporteurak lòt ekipman transmèt?
Transporteurs inivèsèl yo enkli transporteurs senti, transporteurs vis, elatriye, ki anjeneral orizontal. Z-tip asansè bokit se yon ekipman transpò lineyè lajman itilize. Kontrèman, asansè bokit Z-kalite a ka transpòte materyèl nan yon liy dwat, diminye liy transpò nan wotè leve a, fè sistèm nan kontra enfòmèl ant, ak Z-tip asansè bokit la gen bon sele. Travay andedan kay la gen yon pi bon fonksyon sele, ki ka diminye polisyon nan anviwònman an.
Karakteristik
1. Manje vètikal pa domaje materyèl yo
2. Piyon an reyini se fasil ranplase, sove demonte ak diminye depans antretyen;
3. la lou mato levye tip tension aparèy adopte, ki kapab reyalize otomatik tension. Pa gen okenn ajisteman obligatwa apre yon sèl enstalasyon, epi yo ka kenbe yon tansyon konstan pou asire operasyon nòmal machin nan.
Evite glise oswa glise;
4. Li gen gwo fòs rupture ak rezistans, e li gen yon lavi sèvis long.
Paramèt teknik
|
Modèl |
HYZD-2L |
HYZD-3L |
HYZD-5L |
HYZD-7L |
HYZD-10L |
HYZD-20L |
|
Kapasite/Bokit |
2.0L |
3.0L |
5.0L |
7.0L |
10.0L |
20.0L |
|
Maksimòm Sòti |
6m³/h |
8m³/h |
12m³/h |
15m³/h |
17m³/h |
30m³/h |
|
Vitès |
9-11m / min |
|||||
|
Leve wotè |
Customized |
|||||
|
Pouvwa |
0.55-11kw |
|||||
Nòt:
1. Volim bokit la nan tablo a se volim bokit kalkile a, epi volim transmèt la kalkile dapre faktè ranpli 0.6.
2. Hopper: manje klas ABS Hopper / Hopper asye pur / Hopper asye kabòn
Estrikti a
Z seri anvwaye konpoze de pati kouri, aparèy kondwi (aparèy wotasyon dousman), aparèy anwo, bwat mitan ak aparèy ki pi ba.
Kouri pati ---- konsiste de Hopper ak chèn roulo manch rad.
Kondwi aparèy - adopte motè seri Y, redukteur ak redukteur kondwi chèn, elatriye (itilizatè switch kontwòl elektwonik -defini).
Aparèy -kouri ralanti-adopte yon motè angrenaj, lye ak yon redukteur ak yon aparèy rediksyon kondwi chèn atravè yon anbreyaj, jeneralman yo itilize pandan antretyen ekipman, aparèy sa a se yon aparèy itilizatè-seleksyone.
Aparèy kondwi transporteur Hopper Z tip divize an de kalite: gòch-monte ak dwa-monte:
Enstalasyon bò gòch -: Fè fas a pò a manje, pouvwa a nan inite kondwi a se sou bò gòch nan bwat la.
Dwat-monte: Fè fas a pò a manje, pouvwa a nan inite kondwi a se sou bò dwat la nan bwat la.
Aparèy anwo - ekipe ak piyon anwo, arbr prensipal ak pò egzeyat.
Seksyon presegondè - Seksyon mitan an gen ladann: seksyon presegondè premye seksyon an, seksyon presegondè estanda a, seksyon presegondè a ak pòt enspeksyon an, ak seksyon presegondè ki pa-estanda.
Pi ba aparèy - enstale ak piyon pi ba, arbr ke ak aparèy tansyon, elatriye (switch nivo materyèl, itilizatè switch vitès -defini).
Karakteristik estriktirèl
Hopper:Yo nan lòd yo satisfè bezwen yo nan kliyan yo, gen divès kalite materyèl tankou nilon, ABS, PP, Nerjaveèi asye 304, Nerjaveèi asye 316L, Nerjaveèi asye 310, asye kabòn, elatriye.
chèn:Sèvi ak domestik mak pi popilè chèn, bokit rotary transporteur mekanik chèn transporteur nou an adopte gwo anplasman pwòp tèt ou -lubrifyan chèn transporteur roulo. Se poutèt sa, pèt friksyon chèn nan itilize redwi, lavi sèvis chèn lan pwolonje, epi pri antretyen ak ranplasman redwi.
Chasi:Machin an antye ka fèt an asye kabòn plak frèt flite elektwostatik oswa estrikti asye pur
Kalite transmèt:Rotary bokit transporteur transpòte materyèl nan yon kò fèmen, ak transpòte materyèl nan yon Hopper sispann sou yon chèn. Konsepsyon modilè a ka reyalize yon pakèt konfigirasyon epi yo ka konbine orizontal, vètikal ak orizontal. Z-tip, C-tip, E{-kalite, L{-tip, R-kalite kapab tou milti-pwen manje, milti-pwen dechaje, machin nan antye konplètman sele, pa gen okenn polisyon, pa gen okenn flit, pwòp ak pwòp, ak fleksib, yo ka itilize nan yon ti espas orizontal. machin fasil pou enstale ak modifye.
Kalite ak materyèl dechaje
Aparèy sa a ka itilize nan yon gran varyete anviwònman ki mande pou manyen dou. Z-tip manje, C-tip manje, Z-C melanje manje ak plizyè-pwen manje, milti-pwen dechaje ak lòt okazyon. Kounye a, li se sitou itilize pou manje a nan peze ak anbalaj machin, manje a ak re-seleksyon nan machin klasman koulè, twa -dimansyon sikilasyon chaj ak dechaje nan liy pwodiksyon otomatik yo, ak manje nan milti-pwen nan sistèm otomatik peze ak par.

Lè asansè Z-tip a gen plizyè pò egzeyat, ki jan asansè Z-tip reyalize egzeyat la?
Ki baze sou bezwen kliyan yo, nou bay kliyan twa metòd dechaje pou kliyan yo chwazi:
Dechajman manyèl, dechaje pneumatic, dechaje elektrik.
Avi Kliyan
Si ou vle jwenn enfòmasyon, videyo ak pri pwodwi Z-tip bokit asansè, tanpri bay nou enfòmasyon sa yo: enfòmasyon gwosè; trete matyè premyè (materyèl): non □ gravite espesifik □ kontni imidite □ tanperati □; kondisyon sit; kondisyon espesyal.
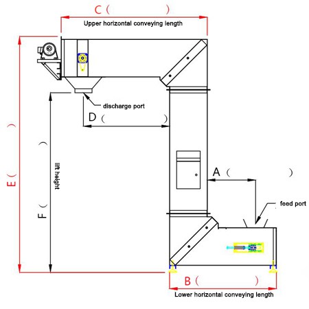
Tanpri bay longè A, D ak F nan figi ki anba a, oswa longè B, C ak E

Ki endistri oswa materyèl yo yeZ tip hopper transporteur fèt nan Kiba pou?
Z-tip asansè a apwopriye pou orizontal-vètikal-transmèt orizontal nan materyèl esansyèl, sitou ki enplike transmèt materyèl ki pa-ki gluan tankou granules ak poud. Pakèt endistri aplikasyon, sitou gen ladan: endistri refractory, endistri plastik, endistri kabòn aktive, endistri metaliji chimik, materyèl bilding ak endistri pwoteksyon anviwònman, endistri angrè, min ki pa -, elatriye.
Leve Materyèl
Endistri manje: biskwit, gummies, gimov, ti pen vapè, krèp, sans poul, bato pòmdetè, nouy diri, boulèt, pistach, grenn melon, pistache, diri, elatriye.
Endistri chimik: granules plastik, kabòn aktive, préservatifs, aditif, angrè, elatriye.
Endistri famasetik: kapsil, tablèt, grenn, elatriye.
Endistri pyès ki nan konpitè: vis, nwa, ekipman metal, elatriye.

Pwoblèm komen
1. senti Hopper a glise.
Ajiste volan an nan liy lan ak sere boulon senti Hopper la.
2. kote yo pote a pousyè tè ak mal wile.
Netwaye BEARINGS yo epi ajoute nouvo grès.
3. Senti transmisyon an glise oswa tonbe, oswa aparèy transmisyon an echwe.
Sere senti kondwi a pou elimine fay aparèy transmisyon an.
4. Vis Hopper a ki lach oswa tonbe, ak Hopper a deplase oswa tonbe. Sispann pou enspeksyon, sere boulon vis Hopper yo, epi ajiste pozisyon Hopper la.
Prekosyon
1. Granulaire Z-tip asansè bokit la jere pa yon moun espesyal, epi switch pouvwa a regilyèman tcheke.
2. Yo nan lòd yo amelyore sekirite nan itilize, anvwaye a bezwen enstale yon limiteur anvwaye ak yon limiteur vwayaj. Kite pouli a leve nan distans ki soti nan bobin la.
3. 300mm ka fè anvwaye a kanpe otomatikman, epi li kapab tou fè esè leve.
4. Leve a ta dwe gen yon siy chaj, epi pwa a pa ta dwe twò chaje lè leve ak bese.
5. Apre anvwaye a kòmanse voye elektrisite, tcheke kondisyon travay yo nan limiter anvwaye a, limiteur vwayaj la ak switch interlock yo nan lòd yo wè si yo nòmal.
6. Anvan leve oswa aterisaj, machin nan ka kondwi sèlman apre klòch la sonnen.
7. la endistriyèl pellet alimentation transporteur pa gen dwa pou pote moun monte desann.
8. Apre travay la fini, plak pandye patikil Z kalite Hopper transporteur a ta dwe tonbe atè, Lè sa a, koupe ekipman pou pouvwa a, epi fèmen pòt pwoteksyon anwo ak pi ba yo.
9. Toujou kenbe anviwònman an ki antoure nan patikil Z kalite Hopper CONVEYOR ijyenik.
Materyèl lubrifyan, sik ak metòd pou asansè bokit
|
Non pati lubrifyan |
Lubrifyan materyèl |
Sik lubrification |
Metòd lubrification |
|
Portant |
Grès ki reziste dlo |
200 èdtan |
ak yon lubrifyan |
|
Backstop |
Grès ki reziste dlo |
50 èdtan |
ak yon lubrifyan |
|
Boulon tansyon |
Grès ki reziste dlo |
500 èdtan |
fwoti |
|
Vitès Larsen |
Dapre spesifikasyon nan redukteur a ekipe |
6 mwa |
vide |
|
Motè elektrik |
Grès ki reziste dlo |
6 mwa |
vide |
Garanti ak sèvis nou yo
Sèvis Pre-Vann:
- Gid kliyan yo chwazi modèl ekipman apwopriye a.
- Voye pèsonèl jeni ak teknik nan sit pwodiksyon an nan tan pou planifye sit la pou kliyan, konsepsyon pwosesis rezonab ak solisyon.
- Nou ka desine ak fabrike pwodwi selon bezwen espesyal kliyan yo pou satisfè bezwen diferan envestisè yo
Sèvis Vann:
- Enspeksyon strik nan pwodwi anvan ou kite faktori a
- Bato dapre kontra
Apre{0}}sèvis vann:
- Peryòd garanti prensipal la nan ekipman an vann pa konpayi nou an se yon ane (eksepte pou echèk la oswa domaj ki te koze pa faktè imen, faktè gaz oswa fenomèn natirèl irézistibl, ak pati vilnerab yo pa kouvri pa garanti a: enjektè gaz, tèt ponp, je fotosensib, elatriye).
- Si echèk ekipman an te koze pa faktè imen, pri a pral chaje dapre pri faktori a.
- Apre ou fin resevwa avi garanti a, reponn nan 2 èdtan. 24 èdtan konsèy teknik pou rezoud pwoblèm.
Konsènan konpayi Odifei

Zhengzhou Odifei machin Ekipman co, Ltd te konsantre sou transmèt ekipman pou 17 ane. Biznis prensipal li se: espiral Vibration vètikal asansè, slat feeder, chèn plak CONVEYOR, slat CONVEYOR, ratwa CONVEYOR, gwo ang CONVEYOR senti, vis CONVEYOR CONVEYOR, CONVEYOR bokit chèn, TD senti asansè bokit, TH bag chèn bokit asansè, NE bokit asansè asansè, ak lòt asansè bokit plen NSE. TD75 CONVEYOR senti (oswa CONVEYOR senti), CONVEYOR mobil, CONVEYOR senti ak gwo zo kòt ang enklinezon; vis CONVEYOR, CONVEYOR vis shaftless; limyè, mwayen ak lou plak chèn transporteur; chèn bokit CONVEYOR machin, SCD Trough clinker CONVEYOR; orizontal doub mixer arbr; limyè, mwayen ak lou plak manje; GZG motè Vibration feeder; ekran trommel, ekran trommel shaftless;
An 2010, ekip R&D konpayi nou an te antre nan endistri resiklaj resous yo, ak siksesif devlope domestik tretman fatra kal transporteurs, depistaj fatra domestik ak klasman ekran trommel shaftless, konstriksyon fatra slat feeders, ak elektrik founo founo kal bouyon transporteurs, ki pa sèlman kreye.
Zhengzhou Odifei machin ekipman co, Ltd te kontinyèlman te pote soti nan inovasyon teknolojik nan Lespri Bondye a nan ekselans, e li te devlope plizyè nouvo pwodwi pratik. Pwodwi a avanse nan konsepsyon, amann nan pwodiksyon, serye nan pèfòmans, gen nivo entènasyonal avanse, vann byen nan kay ak aletranje, ak vize yo dwe lidè endistri a!
FAQ
K: asansè bokit yo konpoze de kèk eleman
A: Hopper: fiks sou kasèt la (oswa chèn traction), gen twa kalite
Bokit fon - apwopriye pou materyèl ki lach;
Bokit fon - materyèl ki gen gwo viskozite;
Bokit triyang - materyèl ki lou ak boulon
Koki: Bati-nan transmisyon ak bouchon.
Kò: Plak asye mens la soude nan yon kokiy kare, epi enstalasyon an devye.
Anba: Enstale aparèy tansyon.
K: Gen plizyè kalite asansè bokit
A: 1. Dapre fòm nan layout: li ka divize an kalite vètikal ak kalite enkline
2. Selon diferan metòd egzeyat: li ka divize an santrifujeur, gravite ak ibrid.
3. Selon diferan metòd chaje: li ka divize an kalite ègzumasyon ak kalite piki.
4. Dapre estrikti Hopper a: li ka divize an bokit fon, bokit gwo twou san fon ak bokit triyangilè.
5. Selon diferan konpozan traction: li ka divize an kasèt ak chèn asye.
K: Ki prensip k ap travay nan asansè bokit la
A: Transmèt prensip k ap travay nan asansè bokit la se jan sa a: Hopper a skoup materyèl ki soti nan depo ki anba a, leve li nan tèt la ak senti CONVEYOR la oswa chèn, vire desann apre contournement wou an tèt, ak asansè a bokit jete materyèl la nan aksepte nan plas la. Senti kondwi nan asansè bokit -kondwi senti a jeneralman adopte yon senti kawotchou, ki enstale sou tanbou kondwi pi ba a oswa anwo ak tanbou redireksyon anwo ak pi ba yo. Asansè bokit la -kondwi chèn jeneralman ekipe ak de chenn transmisyon paralèl, ak yon pè piyon transmisyon sou tèt oswa anba, ak yon pè piyon redireksyon sou anba a oswa sou tèt. Asansè bokit yo jeneralman ekipe ak boîtier pou anpeche pousyè vole nan asansè bokit yo.
K: Ki avantaj ak dezavantaj asansè bokit?
A: Avantaj:
1. Estrikti a senp, gwosè lateral la piti, ak espas etaj la piti.
2. Wotè a leve se gwo, kapasite nan transmèt se yon bon bagay, kò a konplètman fèmen, ak polisyon nan anviwònman an piti.
3. Konsomasyon pouvwa ki ba.
Enpèfeksyon:
1. Li fasil pou bloke lè twò chaje, ak Hopper a fasil pou mete.
2. Li se sèlman apwopriye pou transmèt poud, granulaire ak ti ak mwayen -kago esansyèl, tankou grenn, chabon, sab, elatriye.
3. Machandiz yo pa ka transpòte nan direksyon orizontal.
K: Èske w se yon faktori oswa yon konpayi komès? Lè bati yonZ tip hopper transporteur, Ki lòt materyèl asansè bokit apwopriye pou?
A: Nou se yon faktori, ki te etabli an 2007, ki espesyalize nan fabrike anvwaye Vibration vètikal, asansè Vibration vètikal, asansè bokit, transporteurs senti, transporteurs echèl, transporteurs vis, elatriye ka itilize asansè bokit nan endistri chimik, endistri seramik, endistri manje, endistri métallurgique, elatriye.
K: Kouman sou pyès rezèv?
A: Nou toujou bay pyès rezèv nan pri pri epi ba ou yon lis pyès rezèv lè ou achte machin nan.
K: Èske w ap teste Z tip Hopper CONVEYOR la anvan livrezon?
A: Wi, nou pral teste chak machin ak liy pwodiksyon anvan livrezon, epi voye videyo k ap travay la ba ou. Ou kapab tou tcheke avèk nou anvan livrezon.

Pwosesis akizisyon

Z-Tip asansè bokit (C-Tip asansè) Itilizatè yo ka chwazi konfigirasyon an:
Chasi: en fe chasi/kabòn fe flite chasi
Hopper: Hopper ABS klas manje / Hopper asye pur / Hopper asye kabòn
Chèn: chèn alyaj asye / chèn asye pur
Sprocket: piyon asye alyaj / piyon asye pur
Kondwi: motè òdinè / eksplozyon -prèv motè / motè frekans varyab
Kontwòl: Manyèl / Otomatik (ka Customized selon kondisyon kliyan)
Z-tip bokit asansè se yon nouvo kalite materyèl transmèt ekipman ki te devlope avèk siksè pa entegre teknoloji avanse nan endistri a. Depi ke Z-tip anvwaye yo te mete sou mache a, li ka byen vit adapte yo ak bezwen pwodiksyon an, ak anpil seri pwodwi yo te itilize avèk siksè nan machin jeni anviwònman an, metaliji, endistri chimik, angrè ak lòt endistri yo.
Ki jan yo ka resevwa yon sitasyon?
Paske Z-tip anvwaye a se yon pwodwi mekanik, li gen yon sèten degre nan pwofesyonalis, kidonk li nesesè site anvan sitasyon.
Pou kominike ak kliyan enfòmasyon sa yo:
1. Ki materyèl kliyan an ap transmèt?
2. Ki gravite espesifik nan materyèl la?
3. Ki distans orizontal anwo a ak distans orizontal ki pi ba a? Ki wotè transmèt?
4. Ki volim livrezon obligatwa pou chak èdtan?
5. Lòt moun, tankou: kontni imidite materyèl, materyèl ekipman, elatriye.
Tanpri bay longè A, D ak F nan figi ki anba a, oswa longè B, C ak E

Si ou enteresan nan Z tip hopper transporteur, tanpri ou lib kontakte nou nan 24 èdtan!
Byenveni ou vizite faktori nou an !!!
Baj popilè: z kalite Hopper CONVEYOR, Lachin z kalite Hopper CONVEYOR manifaktirè, Swèd, faktori










